Welcome!
  • Furniture & Object Design
  • G Chair
  • Sit up!
  • blOo
  • Arth
  • not boring any more
  • Caravanserai 2023
  • frame
  • sOofa
  • niCa
  • flco looo
  • D mOon
  • wOm
  • Stay Classy | Room Seperator
  • Stay Classy | Bar Cabinet
  • Interior Design
  • Si House
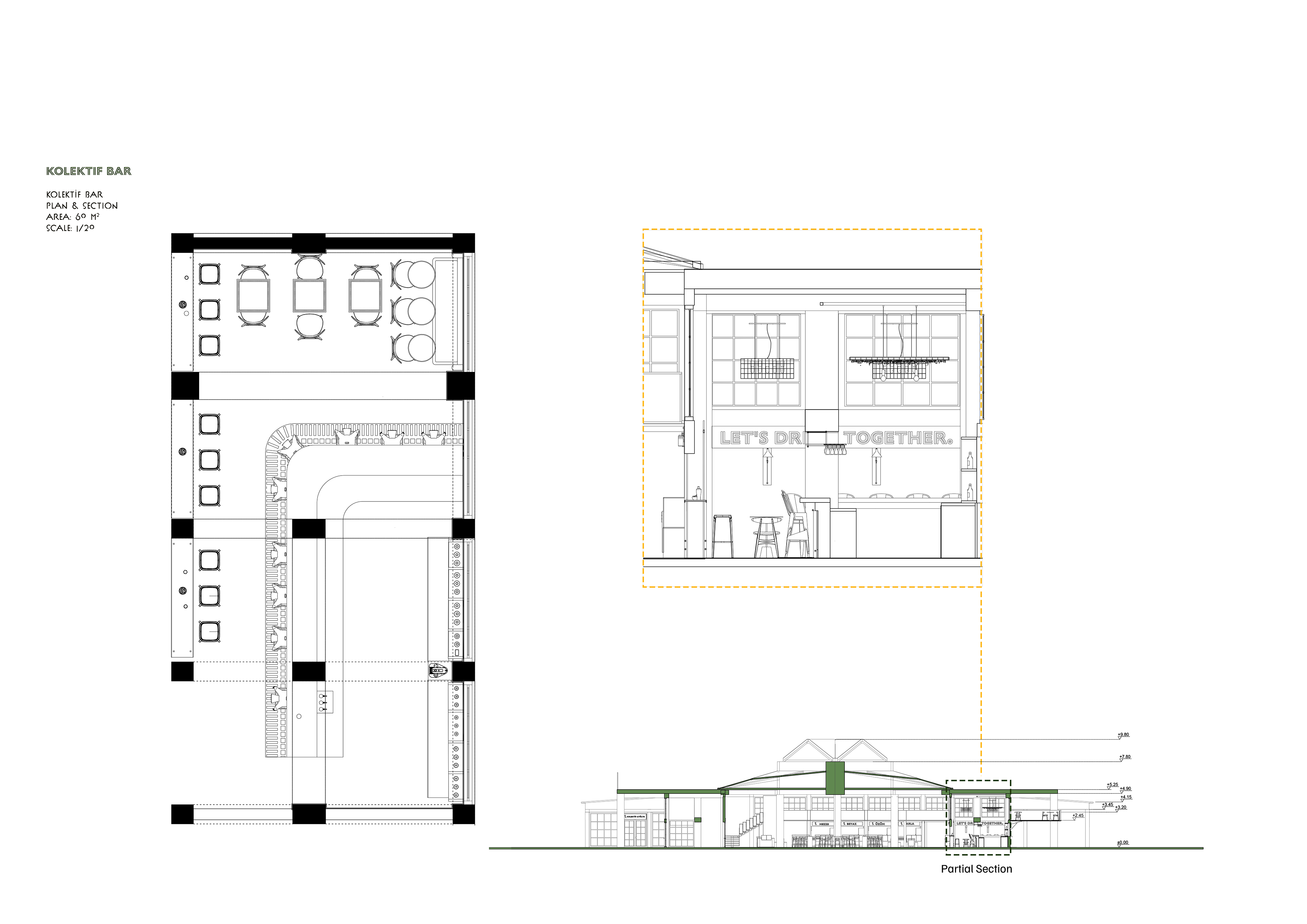
  • Kolektif Keşan
  • MZ House
  • Zest
  • Nica
  • nOmi
  • wOm
  • Sensory Playbeach
About Me
Contact
Sevi Candan Ünal Çağlar
Welcome!
  • Furniture & Object Design
  • G Chair
  • Sit up!
  • blOo
  • Arth
  • not boring any more
  • Caravanserai 2023
  • frame
  • sOofa
  • niCa
  • flco looo
  • D mOon
  • wOm
  • Stay Classy | Room Seperator
  • Stay Classy | Bar Cabinet
  • Interior Design
  • Si House
  • Kolektif Keşan
  • MZ House
  • Zest
  • Nica
  • nOmi
  • wOm
  • Sensory Playbeach
About Me
Contact
↑Back to Top
© 2025 ★